|
Оформите заявку на сайте, мы свяжемся с вами в ближайшее время и ответим на все интересующие вопросы.
|
Заказать услугу
|
Квартиры в новостройках без внутренней проводки встречаются сплошь и рядом. Причем зачастую это сложно назвать негативным аспектом. Ведь проложенная застройщиком проводка зачастую не выдерживает никакой критики. Лучше доверить подготовку энергоснабжения узкопрофильным специалистам. Они справятся с работой быстро и на высочайшем уровне, а предварительно проведенное проектирование позволит исключить для себя наименьшие риски.
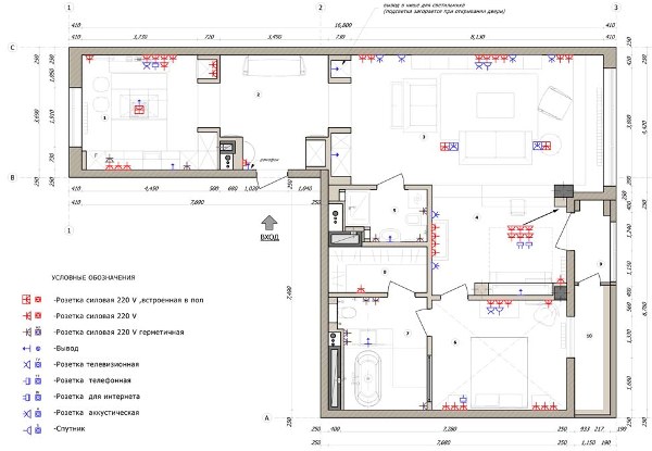
Обратите внимание. Существует несколько линий электроснабжения. Первая включает в себя прихожую и жилые комнаты. Вторая обеспечивает питанием кухню и предполагает увеличенное количество розеток. К третьей подключаются все крупные бытовые приборы, которые есть в квартире.
С чего начать
Предваряет разработку проекта тщательное изучение объекта. На основании полученных данных формируется ТЗ с обязательным отображением в нем такой информации:
- Категория конкретного объекта и потребность обеспечения его бесперебойным электропитанием;
- Предполагаемое количество распределительных щитов и определение места их размещения;
- Подбор места для установки электросчетчика (лестничная площадка или квартира);
- Мощностные характеристики потребителей электроэнергии, место их размещения и количество;
- Деление освещения на основное и вспомогательное, определение общей структуры сети;
- Четкая схема размещения выключателей и розеток.
Важно. Если бытовой прибор потребляет более 1,5 кВт/ч, то для него нужно предусмотреть отдельную линию электропитания. Все такое оборудование в ТЗ должно быть вынесено в отдельную группу.
Варианты проектирования
Сам проект может иметь такое исполнение:
- Типовое. Оптимальное решение при оптовом заказе со стороны застройщика или эксплуатирующей организации. Подходит для стандартных квартир с небольшим количеством электроточек в каждой из них. Стоит дешевле, но не учитывает реальные потребности будущих владельцев;
- Индивидуальное. Разрабатывается для конкретного объекта. Полностью отображает все пожелания клиента с подробным описанием подключаемого оборудования вплоть до наиболее мелкого электроприемника.
И помните. Для освещения и электроснабжения УЗО на 16-20 А будет вполне предостаточно. Если планируется подключение бойлера, плиты или духовки, то лучше установить УЗО на 32 А.











